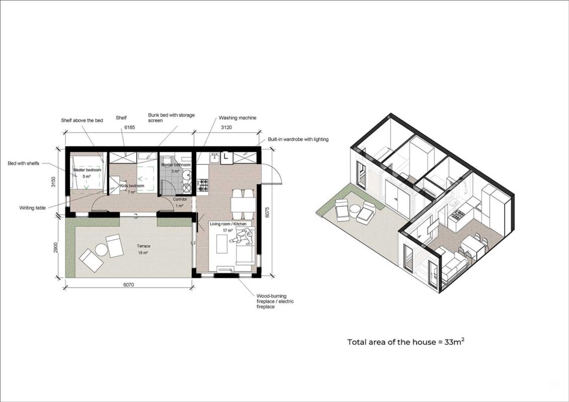
Project Area 44 m²
Floors 1
Modular units 2
Rooms 3
Terrace: Not included in price.
Všechny ceny jsou orientační a závisí na konečném výběru designu a dostupnosti materiálů.
Možnosti rozšíření
- Terasa ze sibiřského modřínu
- Pergola
- Přístřešek pro auto
- FVE systém, solární panely
- Zasklení terasy
- Stříška nad vchodem
- Fasáda ze sibiřského modřínu
- Dekorační panely (např. borůvkový odstín)
Chytrá a komfortní výbava
- Sítě proti hmyzu a stínicí prvky
- Zabezpečovací systém (Wi-Fi)
- Kamerový systém (Wi-Fi)
- Monitoring úniku vody
- Podlahové topení – elektrické nebo vodní
- Krbová kamna s nerezovým komínem
- Lokální větrání s rekuperací
Doprava a instalace
- Doručení po ČR i do zahraničí
- Instalace jeřábem
- Betonové patky nebo zemní vruty


